佳里全新朝南獨棟孝親雙車墅 (AA6315312)
總價 1,558 萬元 降價通知我
座落 台南市佳里區番子寮
坪數 51.74
地坪 49.70
物件型態 透天/別墅
用途現況 住宅; 空屋
謄本用途 住家用
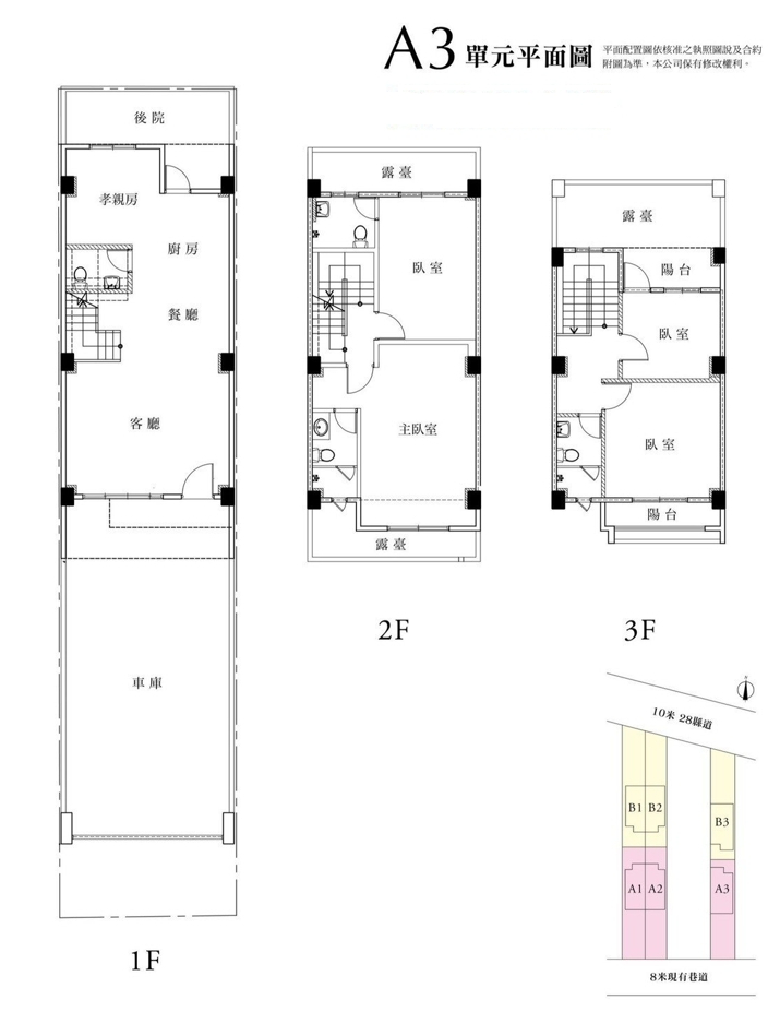
格局 4+1房/ 2廳/ 4衛
樓層 1-3 / 3樓
面臨路寬 6 米
面寬 5.6 米
縱深 25.8 米
朝向 座北向南
屋齡 2年10個月
建物結構 RC
建物外觀 二丁掛
車位 車庫
邊間
採光 2 面
公園綠地 佳里體育公園
學校學區 延平國小、佳里國中
商場市場 光復公有市場、佳里黃昏市場
特色說明
格局方正、前後陽台,採光通風佳;
大地坪雙車庫,一樓可規劃孝親房;
全新完工,稀有雙主臥,大空間好運用;
近佳里市區、台19縣,交通生活一步到位。
權狀資料
主建物 48.19 附屬建物 3.55
公共設施 0.00 土地面積 49.70
公設車位 0.00 權狀車位 0.00
使用分區 鄉村區
  1. 坪數=主建物+附屬建物+公共設施(包含公設車位)+權狀車位。
  2. 主建物係指客廳、餐廳、臥房、浴室、廚房等室內面積。
  3. 公共設施係指區分所有建物之全部或部分所有共用之建物面積,像是樓梯間、電梯間、屋頂突出物等。
  4. 上述係由一平方公尺=0.3025坪換算,詳細資料仍以地政機關核發之謄本為準。
台南仁德加盟店
毅晟地產開發有限公司
(06)270-8000
感謝點閱,歡迎與我聯絡!
您好,我是蔡依潔。
請撥我的手機 0937-378-571
LINE ID:chiu19960928
由我為您提供服務。

※ 本網頁所刊登照片如為道路街景或土地示意圖,非廣告標的所在地僅供參考,實際狀況請依使用執照或謄本所載為準。
佳里全新朝南獨棟孝親雙車墅,台南市佳里區番子寮
佳里全新朝南獨棟孝親雙車墅,台南市佳里區番子寮
佳里全新朝南獨棟孝親雙車墅,台南市佳里區番子寮
佳里全新朝南獨棟孝親雙車墅,台南市佳里區番子寮
佳里全新朝南獨棟孝親雙車墅,台南市佳里區番子寮
佳里全新朝南獨棟孝親雙車墅,台南市佳里區番子寮
佳里全新朝南獨棟孝親雙車墅,台南市佳里區番子寮
佳里全新朝南獨棟孝親雙車墅,台南市佳里區番子寮
佳里全新朝南獨棟孝親雙車墅,台南市佳里區番子寮
佳里全新朝南獨棟孝親雙車墅,台南市佳里區番子寮
佳里全新朝南獨棟孝親雙車墅,台南市佳里區番子寮
佳里全新朝南獨棟孝親雙車墅,台南市佳里區番子寮
佳里全新朝南獨棟孝親雙車墅,台南市佳里區番子寮
佳里全新朝南獨棟孝親雙車墅,台南市佳里區番子寮
佳里全新朝南獨棟孝親雙車墅,台南市佳里區番子寮
佳里全新朝南獨棟孝親雙車墅,台南市佳里區番子寮

資料處理中,請稍等。